single-project

INTERIOR FIT OUT

Essence

INTERIOR FIT OUT

Muhaisinah Villa_3d views

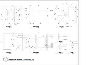
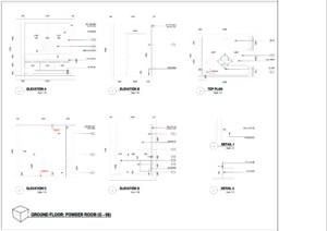
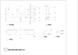
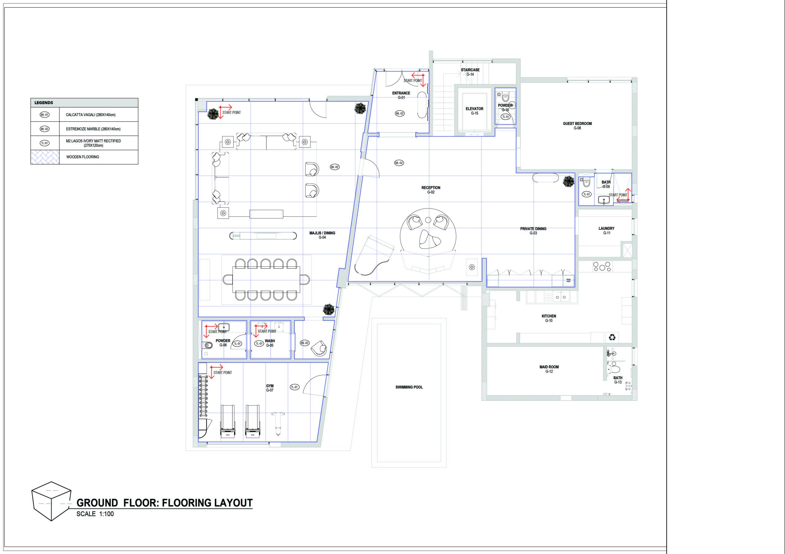
Myhaisnah Villa Drawing

Etisalat Business centers – NAKHEEL MALL

Other Projects -Interior 3d views